︎
[ architecture ]
art
philipp jaskiela
List
[
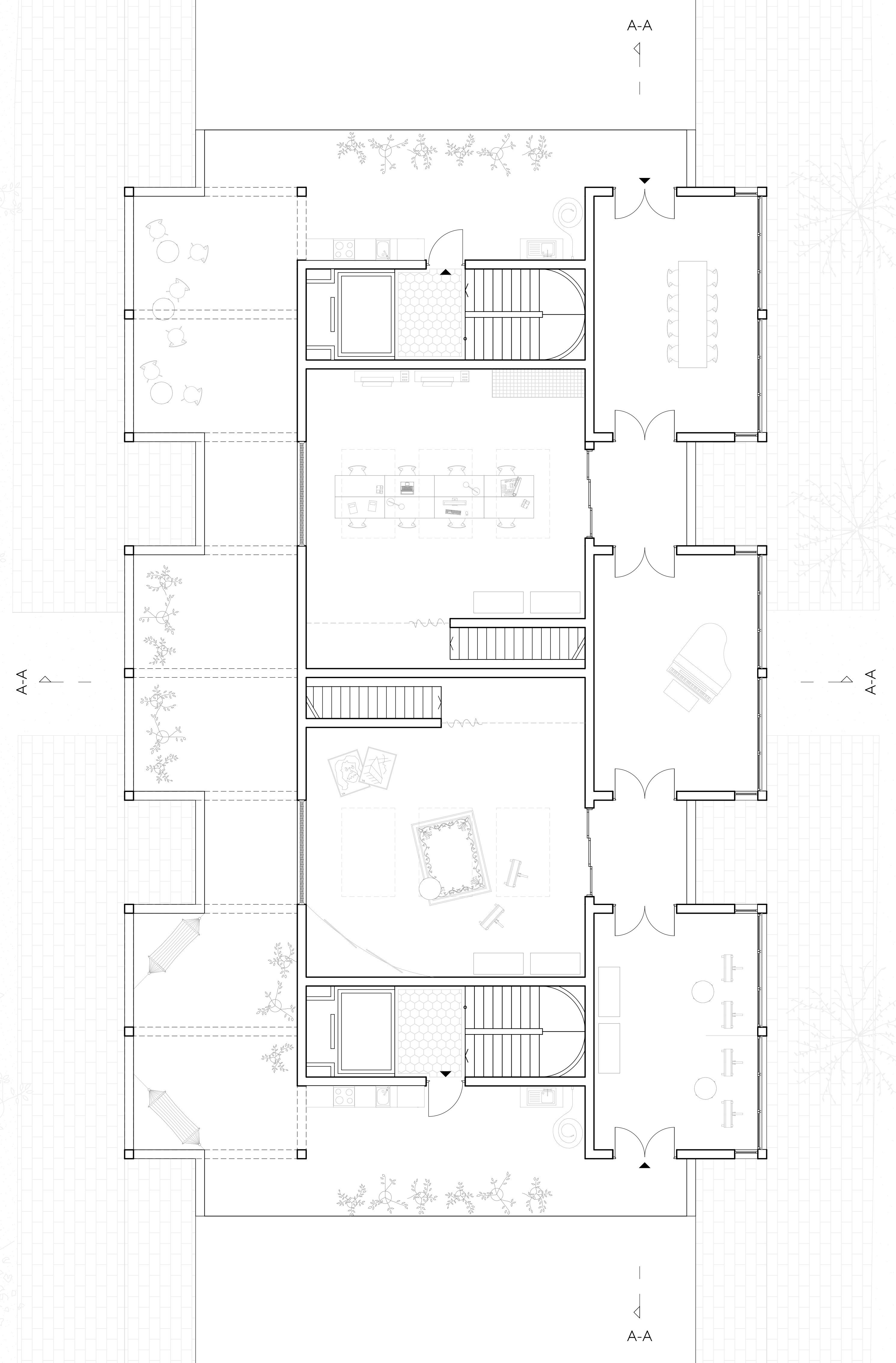
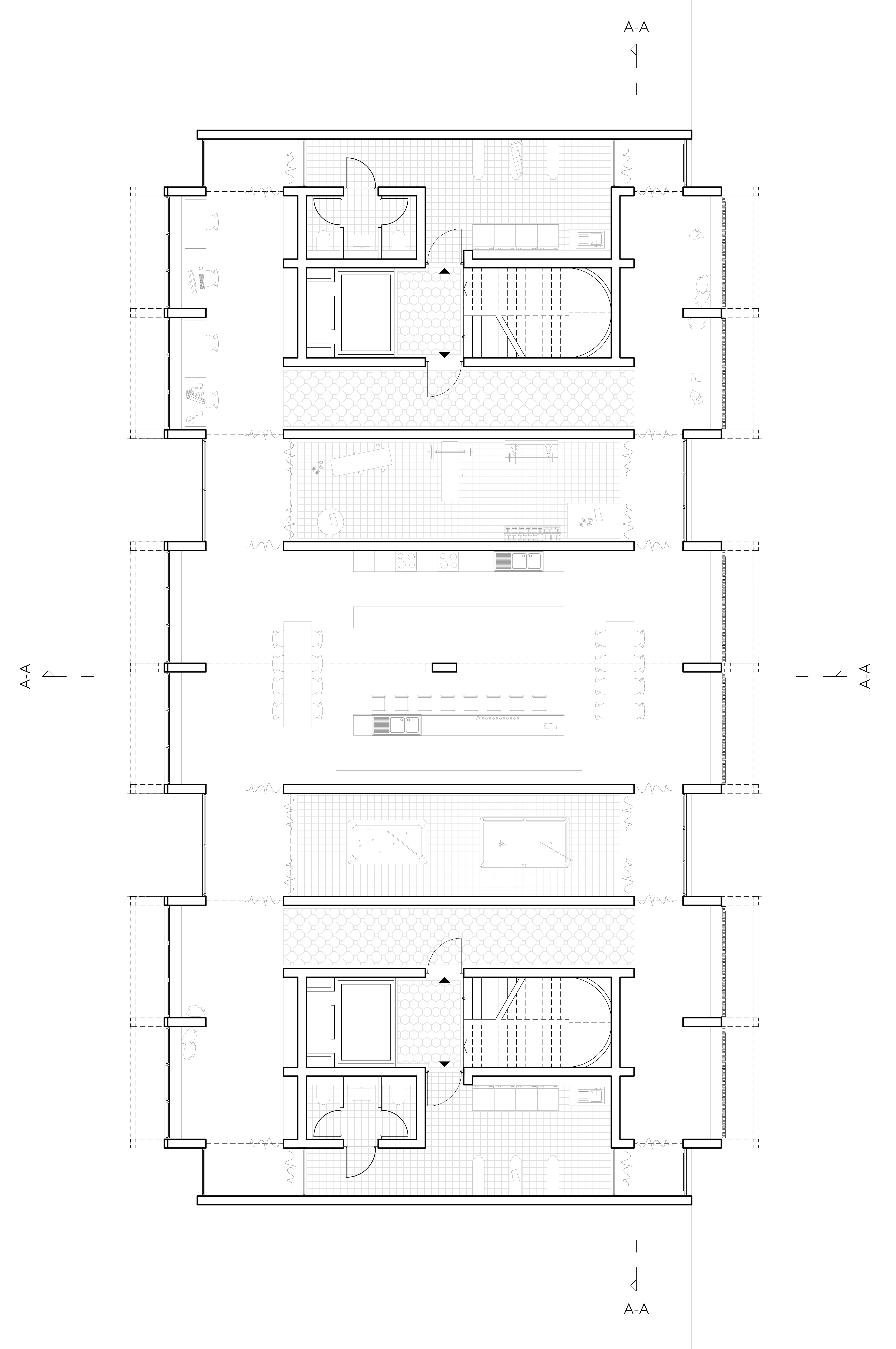
plans
]
models
images
sketches
about
cv
contact
p.jaskiela@posteo.de
imprint