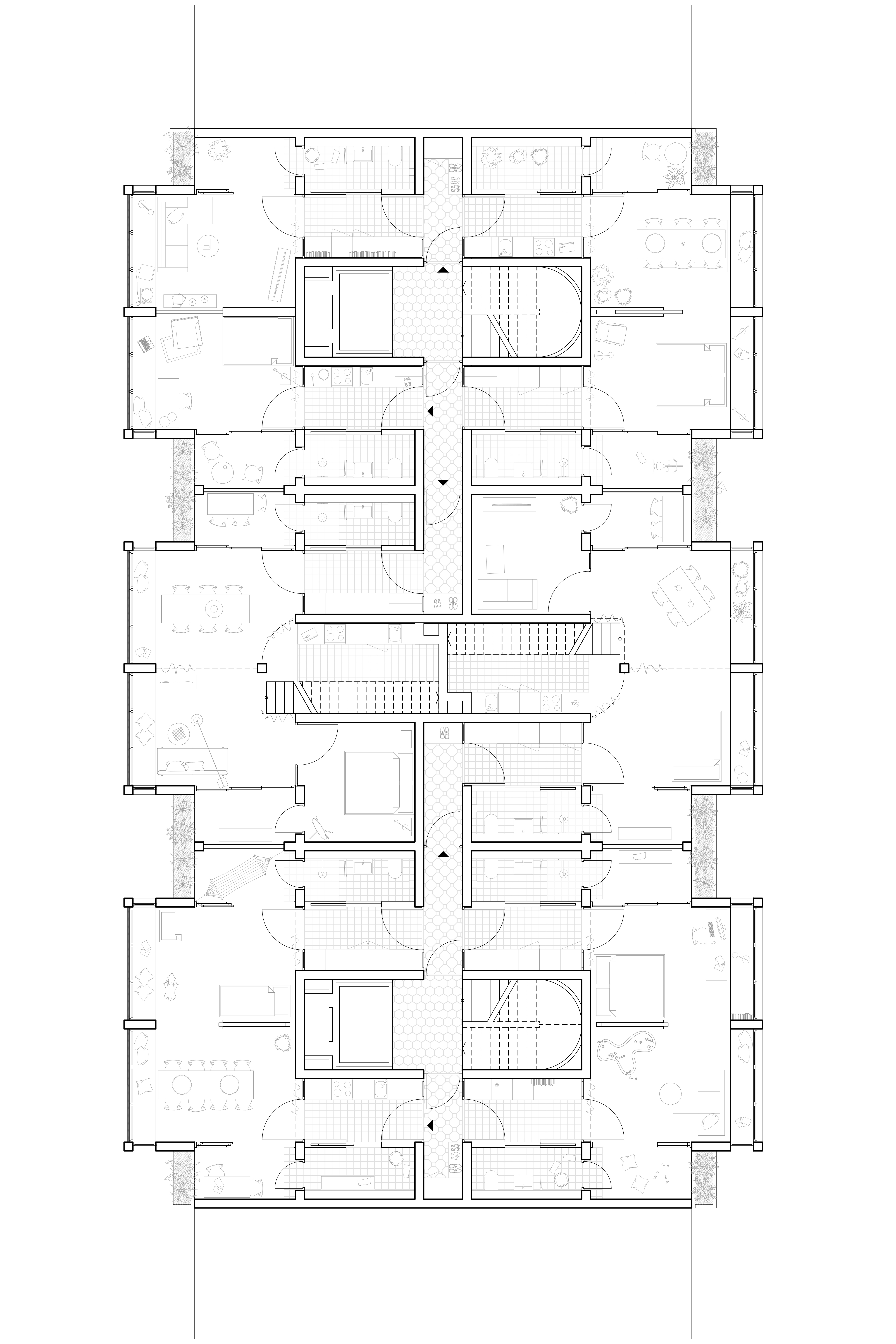
Enfilade2
Prof. Dipl.-Ing. Wolfgang Lorch
            WiSe 2019/2020
Einzelarbeit
 Wohnungsbau










                                     





































                                     



[^]